Construction de la nouvelle Caserne 2
Les travaux de construction de la nouvelle caserne 2 dans le secteur Iberville commenceront en 2026. Le nouveau bâtiment répondra à l’ensemble des normes en matière de sécurité incendie et aux besoins futurs de la Ville.
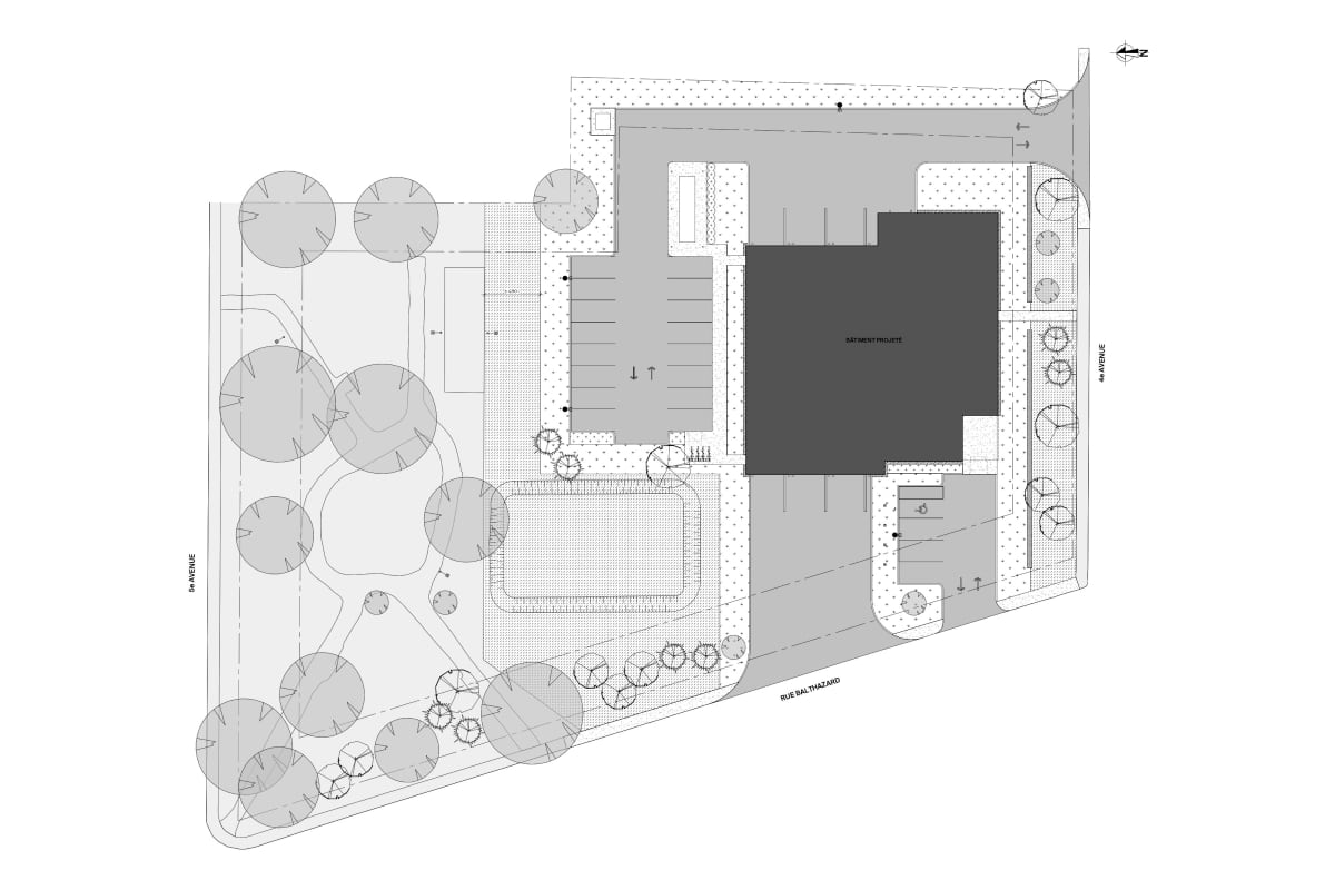
La nouvelle caserne sera voisine du bâtiment existant, à l’intersection de la 4e Avenue et de la rue Balthazard.
Elle est construite tout en maintenant les activités de la caserne existante. Une fois la nouvelle en fonction, l’ancienne sera démolie.
- Elle pourra loger huit pompiers simultanément.
- Elle sera munie d’espaces réservés aux vêtements incendie pour que les pompiers puissent ranger et nettoyer leurs habits de combat de manière sécuritaire et fonctionnelle.
- Elle comptera huit dortoirs, une cuisine avec une salle à manger adjacente, un espace détente, une salle d’entraînement, des vestiaires avec douche, un atelier et une buanderie, répartis sur deux étages pour minimiser l’empreinte du bâtiment au sol.
Visuel du bâtiment à des fins d’illustration seulement. Le résultat final pourrait varier légèrement.
- Elle comprendra six portes de garage et pourra accueillir jusqu’à six véhicules incendie et/ou plusieurs unités d’intervention.
- (À l’heure actuelle, l’unité de sauvetage nautique et l’unité de sauvetage d’urgence en milieu isolé y sont entreposés)
- Le réaménagement du site permettra l’ajout d’un bassin de rétention ainsi que la plantation de plusieurs arbres et arbustes.
Début de la construction : Automne 2026
Prise de possession du bâtiment : Fin 2027
Démolition de l’ancienne caserne : Fin 2027
- Les exigences en santé et sécurité au travail des pompiers sont plus strictes, notamment en ce qui concerne les procédures au retour d’intervention (décontamination, séparation des zones propres et contaminées, circulation sécuritaire).
- La caserne existante permet d’accueillir 5 pompiers en service. Afin de répondre aux exigences du Schéma de couverture de risques d’incendie pour les prochaines années, celle-ci doit être en mesure d’accueillir plus d’effectifs dans le futur.
- Un agrandissement aurait obligé une mise à niveau complète des espaces existants pour respecter les normes en vigueur.
- La construction d’une nouvelle caserne représente une solution cohérente, sécuritaire et adaptée aux réalités opérationnelles actuelles et futures.
Consultez le communiqué de presse du 25 février 2026 relié à cette annonce.
